
.webp)
Volledige indelingsvrijheid, 100% maatwerk
Past een andere indeling beter bij jouw situatie? Bij SelektHuis heb je volledige indelingsvrijheid. Dat betekent dat we de indeling helemaal kunnen afstemmen op jouw wensen. Ook de buitenkant is helemaal aan te passen naar jouw smaak. Van bouwstijl tot kleine details: jij bepaalt hoe je huis eruitziet. Samen ontwerpen we een huis dat perfect aansluit op jouw woonwensen.
Details & uitbreidingen
Dit huis heeft net dat beetje extra. Het risaliet bij de entree geeft de gevel een stoere, speelse look en de luxe gevelstenen met gekleurd voegwerk zorgen voor een strakke en stijlvolle afwerking. De uitgemetselde schoorsteen springt direct in het oog en versterkt het karakter van de woning.
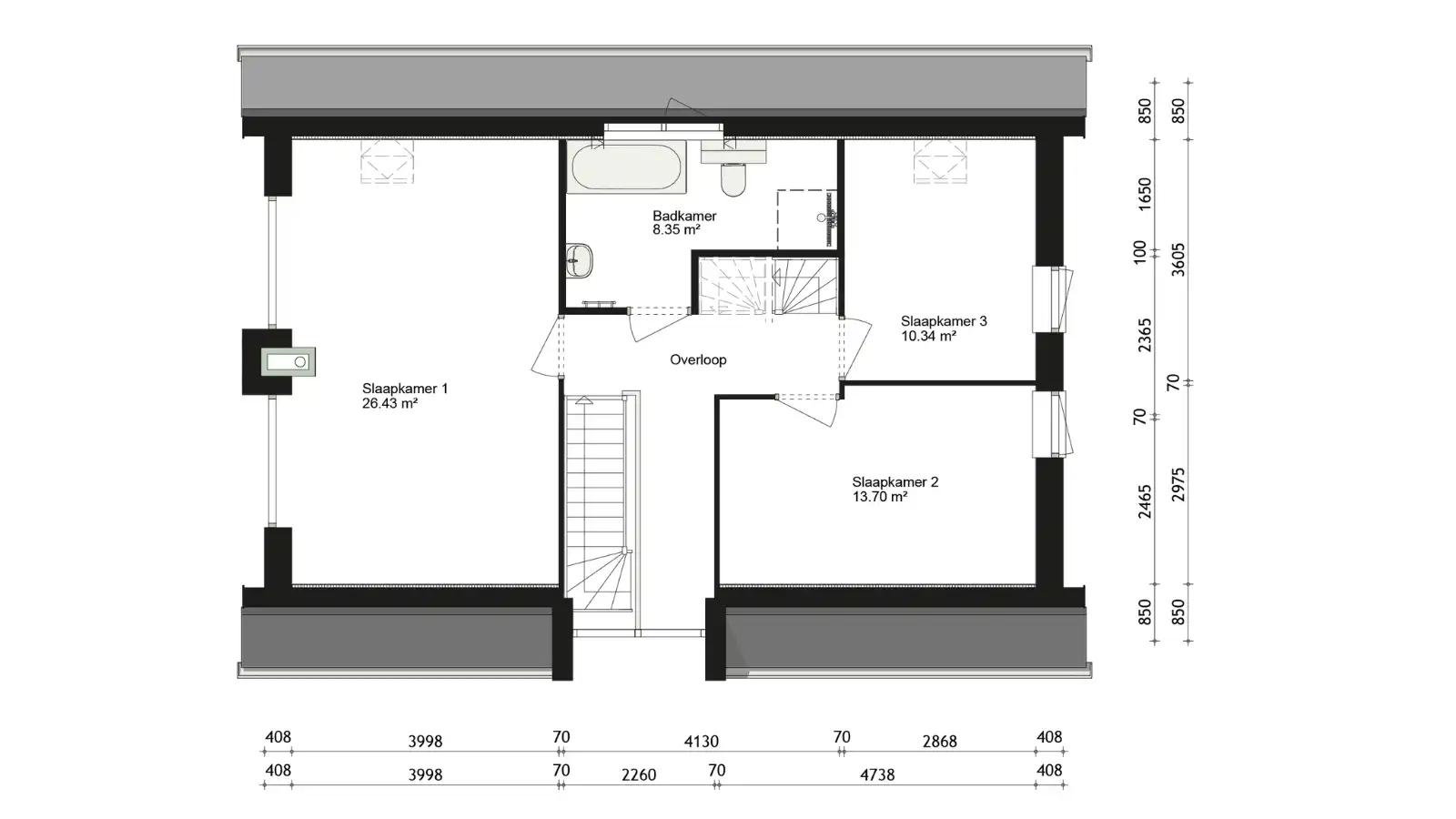
Met de dakhelling van 55 graden ontstaat er extra ruimte binnen. Daardoor is er op de zolder plek gemaakt voor een extra slaapkamer – ideaal voor gasten, werk of als hobbykamer. Tot slot maken de hardstenen raamdorpels het ontwerp helemaal af: een subtiele, maar luxe afwerking die het huis een tijdloze en hoogwaardige uitstraling geeft.


Wat kost deze woning?
Binnen enkele minuten de kosten van deze woning in jouw mailbox.


















