

Volledige indelingsvrijheid, 100% maatwerk
Past een andere indeling beter bij jouw situatie? Bij SelektHuis heb je volledige indelingsvrijheid. Dat betekent dat we de indeling helemaal kunnen afstemmen op jouw wensen. Ook de buitenkant is helemaal aan te passen naar jouw smaak. Van bouwstijl tot kleine details: jij bepaalt hoe je huis eruitziet. Samen ontwerpen we een huis dat perfect aansluit op jouw woonwensen.
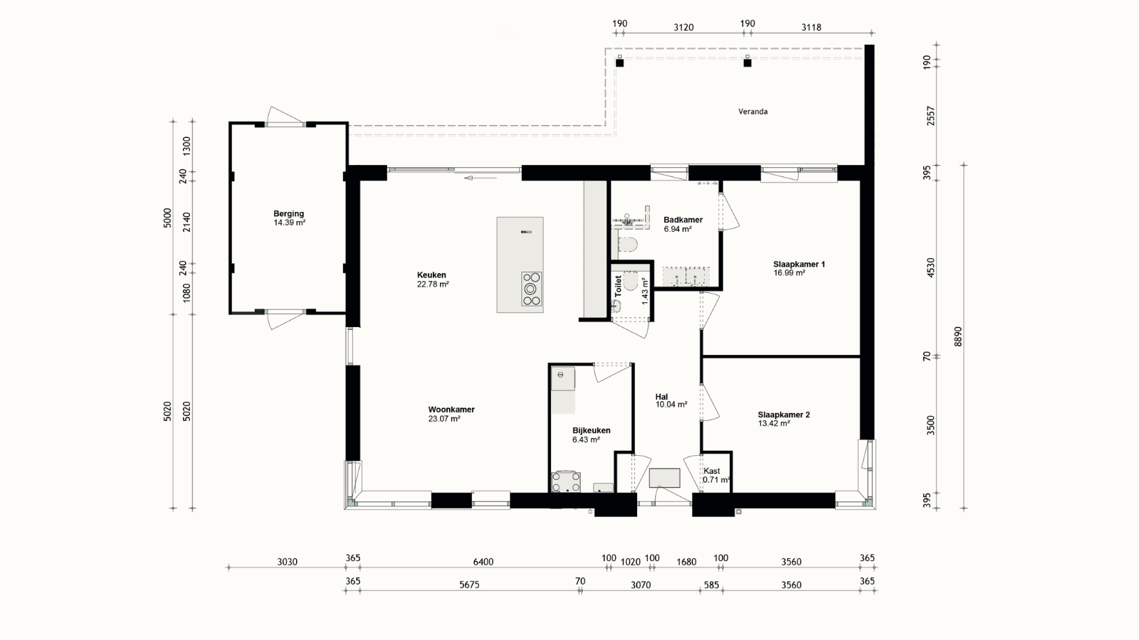
Details & uitbreidingen
Deze woning is met veel zorg ontworpen en tot in detail afgewerkt. Door de verbrede opzet voelt het huis extra ruim aan en krijgt je extra leefruimte. De aangebouwde veranda met luifel is een heerlijke plek om het hele jaar door van buiten te genieten. De handige berging biedt extra ruimte voor al je spullen. Dankzij het verdiept voegwerk in een bijpassende kleur heeft de gevel een warme, eigentijdse uitstraling. De twee hoekramen zorgen voor veel licht en een mooi, ruimtelijk gevoel in huis. En de extra garderobekast in de hal maakt het dagelijks gebruik nét wat comfortabeler.

Afwerkingsniveau
Naast alle aanpassingen aan de indeling en de uitstraling van de woning, kan je ook zelf het afwerkingsniveau kiezen van je ideale vrijstaande woning. Wil je zelf veel afwerken? Kies dan voor een casco woning. Ga je liever voor ontzorgen van begin tot eind? Ga dan voor een sleutelklare of nul-op-de-meter-woning.

Wat kost deze woning?
Binnen enkele minuten de kosten van deze woning in jouw mailbox.














