

Volledige indelingsvrijheid, 100% maatwerk
Past een andere indeling beter bij jouw situatie? Bij SelektHuis heb je volledige indelingsvrijheid. Dat betekent dat we de indeling helemaal kunnen afstemmen op jouw wensen. Ook de buitenkant is helemaal aan te passen naar jouw smaak. Van bouwstijl tot kleine details: jij bepaalt hoe je huis eruitziet. Samen ontwerpen we een huis dat perfect aansluit op jouw woonwensen.
Details & uitbreidingen
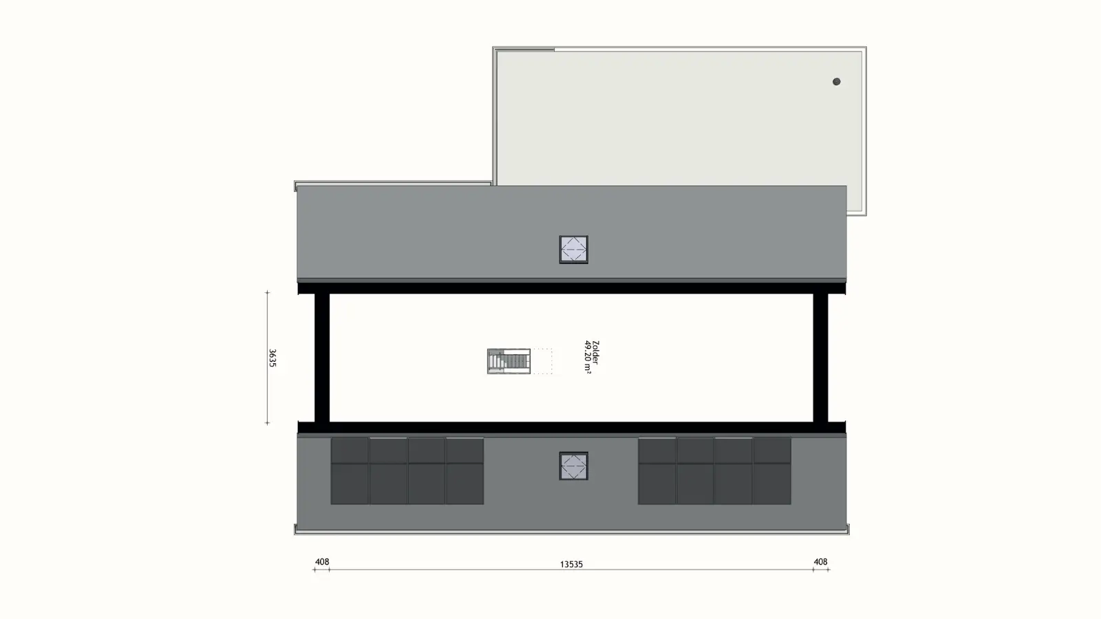
Niet alleen de indeling van deze woning is volledig aan te passen aan je eigen wensen, ook hebben de opdrachtgevers het ontwerp helemaal naar hun smaak laten uitvoeren. Zo is er gekozen voor een topgevel met een overstek van 0,45 meter, wat de woning extra karakter geeft. Voor meer opbergruimte is een geïsoleerde berging toegevoegd. De gevel is uitgevoerd met luxe stenen met staande accenten, wat zorgt voor een eigentijdse uitstraling met een stijlvolle touch.
De luifel bij de entree maakt het geheel compleet en geeft de woning een stijlvol aanzicht. Omdat dit een levensloopbestendige woning is, zijn er zowel op de begane grond als op de eerste verdieping volledige badkamers aanwezig. Ideaal voor nu én de toekomst. Tot slot is de woning voorzien van twintig extra zonnepanelen, waarmee de bewoners nog meer energie kunnen opwekken.


Wat kost deze woning?
Binnen enkele minuten de kosten van deze woning in jouw mailbox.

















